Mẫu thiết kế biệt thự hiện đại 140m2, với kiến trúc mái thái nổi bật, tiểu cảnh quanh nhà bố trí hợp phong thủy. Công năng khoa học, mang đến một chốn đi về thật bình yên giữa phố phường tấp nập. Nếu bạn đang ấp ủ cho mình một ngôi nhà mơ ước và yên bình như thế. Thì hãy theo chân xây dựng GEC để khám phá công trình kiến trúc biệt thự sang trọng này nhé!
Thiết kế ngoại thất biệt thự hiện đại 140m2 tại quận 2
Nhìn bên ngoài căn biệt thự được bao bọc bởi tường rào bê tông kiên cố. một bức phù điêu đắp nổi ở mặt tiền chính tăng thêm vẻ đẹp cho công trình. Nhìn tổng thể bức tranh kiến trúc, mẫu biệt thự hiện đại 140m2 thể hiện sự kiên cố và bề thế. Hình khối kiến trúc chắc chắn và bền vững. Toàn bộ phần móng, cùng không gian tầng 1 được ốp bằng đá tự nhiên. Để tránh bụi và thời tiết làm ảnh hưởng đến chất lượng công trình. Số lượng bậc tam cấp bước vào sảnh chính. Và những khu vực quan trọng trong nhà đều được kiến trúc sư tính toán để phù hợp. Với số tuổi cũng như các quy tắc về phong thủy, mang đến may mắn và tài lộc cho người sở hữu.


Lối đi trải sỏi bên hông biệt thự hiện đại 140m2
dẫn gia chủ và các vị khách đến một chòi canh. Nơi có bộ bàn ghế và những ấm trà thơm ngát, thích hợp để trò chuyện, tâm tình. Kiến trúc mái thái thiết kế giật cấp, khối mái đua rộng. Chạy thống nhất từ mái chính cho đến mái phụ hay mái công. Gam màu nâu đen xám kết hợp với màu trắng be và khoảng sân trước lát gạch màu xám. Sự phối màu hài hoà và chuẩn theo mệnh phong thuỷ của những nhà thiết kế tài năng.

Cách trang trí sân vườn đơn giản nhưng vô cùng sống động. Với sự kết hợp của cả khu tiểu cảnh khô và tiểu cảnh nước. Các yếu tố về đa dạng, cân bằng, tỉ lệ, kích cỡ các loại cây trồng đều được nhà thiết kế chú ý.
Mặt bằng công năng dành cho biệt thự hiện đại 140m2
Mặt bằng công năng là một trong những hạng mục quan trọng nhất trong thiết kế biệt thự. Kiến trúc sư đã lên phương án thiết kế mặt bằng công năng cụ thể cho nhà biệt thự 3 tầng như sau:
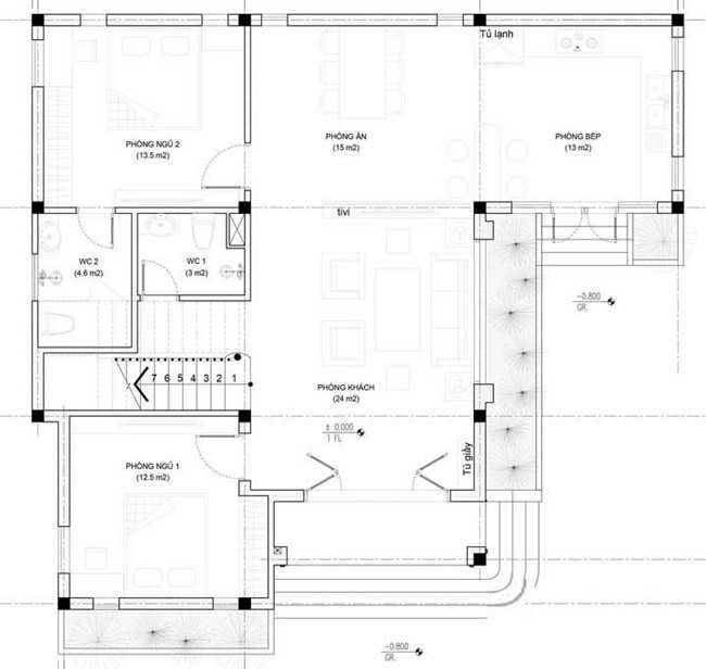
Bản vẽ tầng 1 biệt thự 3 tầng chữ L

Tầng 1 gồm: Phòng khách, phòng ăn, phòng bếp, phòng ngủ 1, phòng ngủ 2
Ngay khi bước lên bậc tam cấp. Kiến trúc sư bố trí một chiếc tủ giày lớn để đựng đồ cho khách và các thành viên trong gia đình.
Một phòng khách rộng 24m2 là nơi gia chủ tiếp đại bạn bè và đối tác làm ăn.
Phòng ăn rộng 15m2 đặt liền kề, ngăn với phòng khách bằng kệ tivi đặt ở giữa.
Bếp trong biệt thự rộng 13m2 hướng ra khu vực sân vườn ở bên cạnh hông.
Phòng ngủ nhỏ rộng 12m2 dành cho người giúp việc.
Phòng ngủ ông bà đặt cuối nhà và có phòng vệ sinh riêng để thuận tiện cho ông.bà khi không muốn di chuyển ra nhà vệ sinh chung bên ngoài.

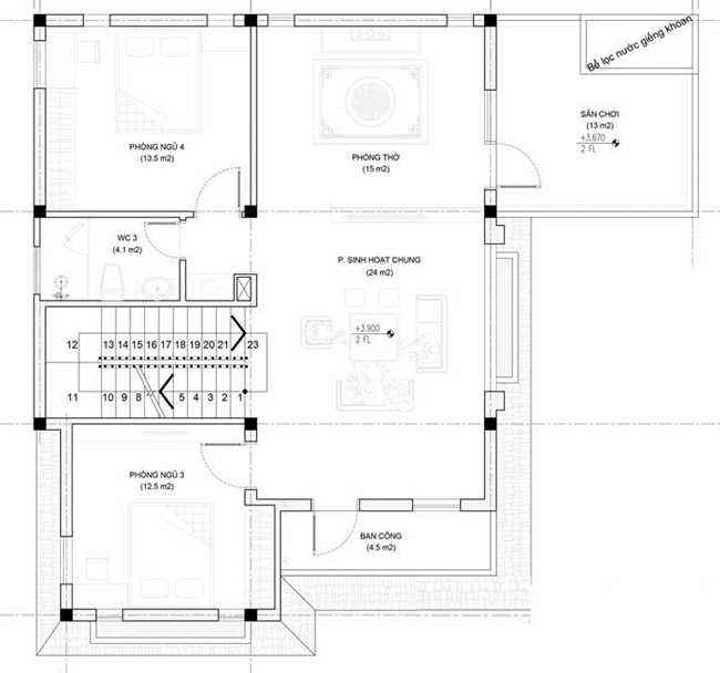
Tầng 2 gồm: Phòng ngủ 3, phòng ngủ 4, phòng sinh hoạt chung, phòng thờ, sân chơi
Tầng 2 là khu vực dành cho các hoạt động riêng tư trong nhà. Với một phòng ngủ dành cho bố mẹ và phòng cho cô con gái nhỏ. Một phòng sinh hoạt chung đặt ở trung tâm tầng 2 dành cho hoạt động trò chuyện. Kết nối giữa các thành viên trong biệt thự 3 tầng 4 phòng ngủ. Kế phòng sinh hoạt chung là phòng thờ rộng 15m2 có hướng nhìn ra ban công, để thoát mùi nhang khói.

Thiết kế nội thất biệt thự hiện đại 140m2 4 phòng ngủ

Phòng khách có sofa ở giữa nhìn về phía kệ tivi theo thói quen sinh hoạt của các gia đình Việt.

Kiểu sàn giật cấp giúp phân chia khu vực phòng khách với phòng ăn và nhà bế.

Cửa kính kéo dài từ sàn đến trần tăng cường ánh sáng cho phòng khách biệt thự hiện đại 140m2.

Chủ nhân của ngôi nhà mong muốn được sống trong không gian đơn giản nhưng sang trọng.

Khu vực bếp được bố trí đầy đủ thiết bị điện tử, tiện nghi.


Phòng ngủ chính được bố trí đầy đủ nội thất cơ bản
Bao gồm giường và giá kệ, bàn làm việc và một ban công nhỏ. Tủ kệ đặt đầu giường là nơi để đồ trang trí và những quyển sách mà gia chủ đang đọc dở.

Phòng làm việc gồm một chiếc bàn làm việc mặt kính và ghế sofa màu vàng hiện đại.

Toàn bộ không gian chức năng trong mẫu biệt thự hiện đại kể cả ban công đều được chăm chút kỹ lưỡng tạo nên vẻ đẹp sinh động, ấm cúng, gần gũi với tự nhiên nhưng vẫn giữ được sự tiện nghi, thoải mái nhất định.
CÔNG TY CỔ PHẦN ĐẦU TƯ PHÁT TRIỂN CÔNG NGHỆ GEC
CEO TẠ QUANG HUY.
Address: BT 3.7, khu chức năng đô thị Tây Mỗ, quận Nam Từ Liêm, Thành phố Hà Nội.
Mobie: 0979.781.007 ; Tel: 02436.68.68.30 ; Zalo: +84 979-781-007.
Email: gecvietnam@gmail | http://gec.com.vn | https://www.facebook.com/gecvienam
