Thiết kế biệt thự hiện đại tuyệt đẹp nhờ sự phá cách độc đáo của những mảng khối kiến trúc hiện đại, sắp xếp không tuân theo một bố cục hay quy trình nào làm nên vẻ mềm mại, uyển chuyển và quyến rũ cho công trình. Căn biệt thự là mẫu kiến trúc được gia chủ xây tặng dành cho cậu con trai của mình.
Biệt thự hiện đại tuyệt đẹp
Ngay sau khi tiếp nhận yêu cầu tư vấn thiết kế của chủ đầu tư. Kiến trúc sư đã nhanh chóng di chuyển đến khu đất xây dựng để khảo sát hiện trạng thực tế, đồng thời tìm hiểu rõ hơn về nhu cầu và mong muốn của con trai chủ sở hữu, hạn chế tối đa việc chỉnh sửa phương án về sau. Sau nhiều lần họp bàn các kiến trúc sư đã đưa ra phương án bố trí tầng 2 và tầng 3 vuông góc. Với khu vực tầng 1 đề dành khoảng trống làm sân thượng trồng cây đồng thời tăng độ thoáng cho công trình.
Hình khối công trình được xử lý sáng tạo. Tập trung vào những khối phẳng cùng với việc thiết kế bố cục không cân xứng mang đến những nét đẹp mềm mại. Nhẹ nhàng và lôi cuốn mạnh mẽ. Toàn bộ mặt tiền chính được xử lý kết hợp với khoảng tường thông gió trắng, ban công kính cường lực màu nâu vân gỗ và hệ thống lam gỗ ốp với cửa nhôm Xingfa màu nâu đen. Không gian trông thoáng hơn, rộng hơn và tràn ngập sức sống.

Dựa theo tuổi của gia chủ cùng hình dáng ô đất. Kiến trúc sư xử lý mẫu biệt thự hiện đại theo hướng Tây Nam để đón gió và ánh sáng. Thêm một bức tường bằng gạch ở bên hướng Tây. Hệ cây xanh ở trước mặt tiền giúp công trình bên trong lúc nào cũng mát mẻ, thoáng gió.
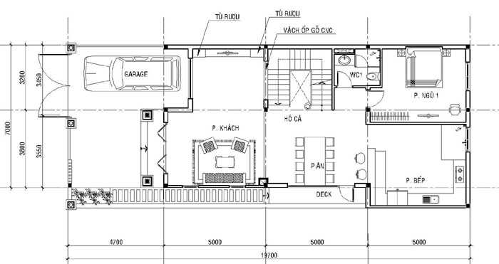
Mặt bằng tầng 1 biệt thự phố hiện đại

Tầng 1 gồm: Nhà để xe, phòng khách, hồ cá, phòng ăn, phòng bếp, phòng ngủ, nhà vệ sinh
Ngay cạnh lối vào là một nhà để xe rộng rãi. Thuận tiện cho việc đi lại của chủ nhà và khách khứa bên trong.
Phòng khách bố trí liền kề và có thiết kế mở, gần gũi với tự nhiên theo đúng sở thích của con trai chủ biệt thự hiện đại cao cấp.
Phòng ăn cách với cầu thang bằng một hồ cá. Tạo không gian vui mắt, kích thích tinh thần ăn uống.
Phòng bếp đặt cuối nhà nhưng vẫn nhận đầy đủ ánh sáng nhờ có một cửa phụ thông ra vườn sau.
Một phòng ngủ dành cho người giúp việc đặt tại tầng ngay cạnh cầu thang của căn biệt thự.
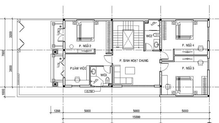
Mặt bằng tầng 2 biệt thự phố tuyệt đẹp.

Tầng 2 gồm: Phòng sinh hoạt chung, phòng ngủ master, phòng ngủ 3 và phòng ngủ 4
Một phòng sinh hoạt chung đặt đối diện cầu thang để làm nơi hội họp riêng tư của các thành viên trong nhà. Phòng ngủ master thông với phòng làm việc và nhà tắm đối diện. Phòng ngủ 3 và phòng ngủ 4 dành cho những đứa cháu của chủ nhà sau này. Để tiết kiệm diện tích thì hai phòng này sau này sẽ sử dụng chung một phòng vệ sinh.

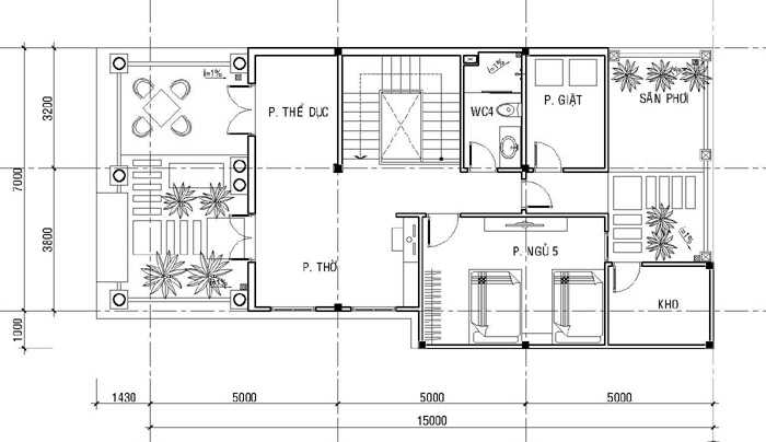
Tầng 3 gồm: Phòng thể dục, phòng thờ, phòng ngủ 5, phòng giặt, sân phơi, kho
Phòng thể dục được bố trí ở tầng 3 để lấy gió thoáng và không khí. Bên cạnh là một phòng thờ nhắc nhở các thành viên trong nhà luôn nhớ về ông bà, tổ tiên.
Phòng ngủ 5 với hai chiếc giường ngủ được dành cho khách mỗi khi có người ở quê lên chơi. Phòng giặt, nhà tắm và sân phơi đặt song song. Để tiện trong việc xử lý cấp, thoát nước cũng như trong sinh hoạt hàng ngày.
Thiết kế nội thất dành cho biệt thự phố tuyệt đẹp

Theo yêu cầu của gia chủ một hồ bơi đặt cạnh phòng khách.

Phòng khách đẹp hiện đại được thiết kế ngay cạnh cửa chính
Tạo nên một phối cảnh sang trọng và ấn tượng ngay khi bước vào nhà.

Cầu thang thông tầng bố trí ở góc, cạnh nhà bếp, ngăn cách không gian sinh hoạt bên ngoài với phòng ăn và bếp nấu phía trong.

Khu vực cuối căn biệt thự phố tuyệt đẹp được dành trọn vẹn cho phòng bếp và bàn ăn.

Thiết kế bàn ăn gỗ dài để chủ nhà có thể mời bạn bè và khách khứa ở lại dùng bữa.

Chiếc giường ngủ hình nửa vòng tròn
Được nhấn nhá bằng đèn Led bên dưới khiến căn phòng trở nên đặc biệt, lưu giữ hình ảnh trong tâm trí.

Cạnh phòng ngủ là phòng thay đồ nhìn ra khu vườn bên ngoài nên không gian phòng này khá thông thoáng.

Phòng tập thể dục hiện đại nâng tầm đẳng cấp cho biệt thự phố tuyệt đẹp.

Một bộ bàn ghế sofa đặt cạnh ban công nhìn ra khu sân thượng phía trước.

CÔNG TY CỔ PHẦN ĐẦU TƯ PHÁT TRIỂN CÔNG NGHỆ GEC
CEO TẠ QUANG HUY.
Address: BT 3.7, khu chức năng đô thị Tây Mỗ, quận Nam Từ Liêm, Thành phố Hà Nội.
Mobie: 0979.781.007 ; Tel: 02436.68.68.30 ; Zalo: +84 979-781-007.
Email: gecvietnam@gmail | http://gec.com.vn | https://www.facebook.com/gecvienam
