Bạn muốn sở hữu một mẫu nhà phố có sân thượng. Để tận hưởng không gian thư giãn tuyệt đẹp ngay trong ngôi nhà của mình? Bạn đang băn khoăn với việc hình thành ý tưởng và những giải pháp hợp lý cho ngôi nhà phố hoàn hảo? Hãy tham khảo mẫu nhà 3 tầng 1 mặt tiền hiện đại với các giải pháp bố trí công năng cũng như đón gió, đón ánh sáng hợp lý dưới đây nó sẽ giúp bạn biến ước muốn thành hiện thực!
Mặt tiền mẫu nhà phố có sân thượng tuyệt đẹp
Công trình tọa lạc trên một con phố đông đúc và sầm uất của thành phố Đà Nẵng. Phía trước công trình được bao phủ bởi dãy tường rào kiên cố. Cửa cổng hình mái thái cao được làm bằng khung nhôm vừa an toàn nhưng cũng.đảm bảo cho gió và các nguồn năng lượng có thể tự do đi vào nhà.
Phối cảnh kiến trúc mẫu nhà phố hoàn toàn khác biệt hơn với những mẫu nhà ống thường thấy. Khối hộp với các góc cạnh vát chéo phô diễn những đường nét sắc cạnh. Thể hiện hình khối kiên cố, bền chắc. Đá ốp trên mặt tiền và dưới mái giúp công trình mãi bền bỉ theo thời gian.

Hệ trụ cột vuông ở tầng 2 và tầng thượng đóng vai trò trong việc chịu lực chính. Nâng đỡ những bức tường bê tông bên trên. Xét về tổng quan. Hình khối hộp thể hiện những nét đủ đầy. Kiên cố và có thể bổ trợ cho dòng vượng khí chung của gia đình. Khối đua ban công rộng ở tầng 2 được xử lý khéo léo và tinh tế, tạo nên ấn tượng khá tốt.

Từ góc chụp nghiêng có thể thấy nhà phố có sân thượng được xử lý khá tinh tế và hợp lý. Hệ thống cửa kính bố trí khắp 3 tầng cũng là một cách để ngôi nhà luôn thoáng đãng.
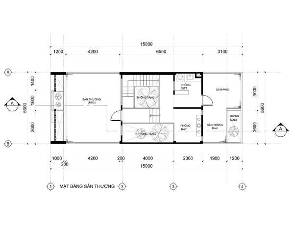
Bản vẽ nhà phố có sân thượng và các khoảng thông tầng
Điểm độc đáo của công trình không chỉ nằm ở mặt tiền hút mắt mà không gian bên trong còn được sắp xếp hợp lý. Với nhiều khoảng thông tầng để không khí và gió có thể lưu thông tự do.

Bước vào ngôi nhà sau khoảng lùi đổ xe là phòng khách rộng rãi, sắp xếp hợp lý. Phòng ăn nằm cạnh cầu thang, bên cạnh là hệ tiểu cảnh. Phía cuối nhà phố có sân thượng cũng có thêm một khoảng thông tầng khác. Bếp nấu hướng ra khoảng thông tầng này. Phòng ngủ nằm cuối nhà nhưng vẫn nhận đầy đủ ánh sáng nhờ có cửa sổ hướng ra khoảng thông tầng.

Phòng ngủ master đặt bên phải cầu thang có nhà vệ sinh. Khu vực thay đồ và một ban công rộng hướng ra khu vực vườn trước. Phòng ngủ 3 và phòng ngủ 4 sử dụng chung nhà vệ sinh để tiết kiệm diện tích cho nhà phố có sân thượng.

Khu vực sân thượng được gia chủ sử dụng để làm tiệc nướng BBQ.

Hình ảnh nội thất nhà phố có sân thượng

Nhờ khoảng thông tầng mà ngôi nhà phố dù có hạn chế mặt tiền cũng sẽ trở nên đẹp. Có sức sống hơn với một không gian xanh mát không kém nhà vườn. Biệt thự sân vườn ở các vùng quê đất đai diện tích rộng.

Bên cạnh đó gia chủ còn khéo léo đặt thêm một bộ bàn ghế dưới khoảng thông tầng để ngồi uống trà hoặc thưởng thức bữa sáng.

Bộ bàn ghế phòng khách đơn giản nhưng vẫn vô cùng cuốn hút.

Nhờ khoảng giếng trời mà gia chủ cần rất ít các loại đèn Led để chiếu sáng. Điều hòa thậm chí còn không cần dùng đến kể cả những khi thời tiết nắng nóng. Nhà nhà phố có sân thượng với diện tích 6x15m thiết kế giếng trời khá hợp lý. Giúp gia chủ có được không gian thư giãn lý tưởng.

Hệ thống tủ bếp gỗ bố trí ngăn nắp có đèn Led nhấn ở giữa.
Cạnh bếp cũng có khoảng giếng trời với mục đích tạo độ thông thoáng. Cùng với đó, cây xanh cũng được khéo léo bố trí tại hành lang ban công vừa tăng tính thẩm mỹ vừa gợi mở sự gần gũi giao hòa với thiên nhiên.

Chỉ cần một khoảng nhỏ trồng cây nền, điểm xuyết vài mảng hoa, còn lại bố trí chỗ ngồi.

Kết luận: Với cách thiết kế nhà phố có sân thượng trên. Tổ ấm của bạn sẽ có một khoảng không gian ngoại thất vô cùng đẹp. Thể hiện nét tinh tế và thõa mãn nhu cầu trồng trọt của bạn.
CÔNG TY CỔ PHẦN ĐẦU TƯ PHÁT TRIỂN CÔNG NGHỆ GEC
CEO TẠ QUANG HUY.
Address: BT 3.7, khu chức năng đô thị Tây Mỗ, quận Nam Từ Liêm, Thành phố Hà Nội.
Mobie: 0979.781.007 ; Tel: 02436.68.68.30 ; Zalo: +84 979-781-007.
Email: gecvietnam@gmail | http://gec.com.vn | https://www.facebook.com/gecvienam
