Dù diện tích đất khá khiêm tốn, gia đình anh Long (Hà Nội) vẫn xây nhà ống 44m2, tiện nghi Tôi có mảnh đất diện tích 4×11 mét. Tôi có nhu cầu xây nhà 3 tầng ở và 1 tầng áp mái gồm: Tầng 1 theo thứ tự có 1 sân nhỏ để xe máy, 1 phòng khách, 1 cầu thang lên tầng 2, 1 vệ sinh chung và bếp ăn. Tầng 2 gồm 1 phòng ngủ bố mẹ có vệ sinh khép kín và 1 phòng ngủ nhỏ. Tầng 3 gồm 2 phòng ngủ con và 1 nhà vệ sinh chung. Tầng áp mái có sân thượng, sân phơi và kho chứa đồ.
Tư vấn xây nhà ống 44m2 xinh xắn
Rất mong KTS đưa ra phương án tư vấn hợp lý giúp gia đình tôi. Xin cảm ơn!
Trả lời:
Chào anh,
Dựa trên thông tin về mảnh đất và nhu cầu của gia chủ.KTS xin đưa ra phương án thiết kế dạng nhà ống như sau:
* Về phương án thiết kế mặt bằng
– Mặt bằng tầng 1:
Tầng 1 có không gian chính là phòng khách phía trước và không.gian bếp ăn phía sau, trước nhà có một khoảng sân nhỏ để xe máy. Bố trí nhà vệ sinh dưới gầm cầu thang kín đáo và tiết kiệm diện tích.
– Mặt bằng tầng 2:
Tầng 2 thiết kế 2 phòng ngủ có diện tích đảm bảo và đủ tiện nghi. Phòng ngủ bố mẹ rộng rãi, có phòng vệ sinh riêng, cửa sổ rộng và ban công phía trước nhà. Phòng ngủ nhỏ với diện tích vừa đủ sinh hoạt, giếng trời được sử dụng để lấy ánh sáng, lấy gió tạo không khí trong phòng ngủ .
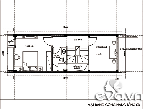
– Mặt bằng tầng 3:
Tầng 3 bố trí 2 phòng ngủ nhỏ tương tự tầng 2. Các phòng.ngủ tận dụng lấy sáng tự nhiên giúp không gian trong nhà ống luôn thoáng đãng, dễ chịu.
– Mặt bằng tầng áp mái:
Tầng áp mái bố trí sân thương rộng rãi hướng ra phía trước nhà,.1 phòng kho chứa đồ cạnh cầu thang, phía sau là sân phơi.
* Về phương án phối cảnh mặt tiền
Phối cảnh thiết kế dạng nhà ống hiện đại, tạo hình những.mảng tường trơn đơn giản với 2 gam màu chủ đạo là màu trắng sữa và màu cà phê. Các không gian được tận dụng ánh sáng tự nhiên triệt để kết hợp cây.xanh tạo nên tổng thể vừa hiện đại vừa thoải mái.
Một số gợi ý về cách bài trí các phòng:
Phòng khách xinh xắn, sang trọng
Nhà bếp nối liền với.khu vực bàn ăn giúp tiết kiệm diện tích
Phòng ngủ dành cho bố mẹ lãng mạn, nhẹ nhàng

Phòng ngủ của con dễ thương, bài trí gọn gàng
CÔNG TY CỔ PHẦN ĐẦU TƯ PHÁT TRIỂN CÔNG NGHỆ GEC
CEO TẠ QUANG HUY.
Address: BT 3.7, khu chức năng đô thị Tây Mỗ, quận Nam Từ Liêm, Thành phố Hà Nội.
Mobie: 0979.781.007 ; Tel: 02436.68.68.30 ; Zalo: +84 979-781-007.
Email: gecvietnam@gmail | http://gec.com.vn | https://www.facebook.com/gecvienam








